Submit an Offer Now!
311 Morse Boulevard 6-3, WINTER PARK, FL 32789
Property Photos
Priced at Only: $329,000
For more Information Call:
(352) 279-4408
Address: 311 Morse Boulevard 6-3, WINTER PARK, FL 32789
Property Location and Similar Properties
- MLS#: O6362964 ( Residential )
- Street Address: 311 Morse Boulevard 6-3
- Viewed: 26
- Price: $329,000
- Price sqft: $577
- Waterfront: No
- Year Built: 1960
- Bldg sqft: 570
- Bedrooms: 1
- Total Baths: 1
- Full Baths: 1
- Days On Market: 14
- Additional Information
- Geolocation: 28.5982 / -81.3478
- County: ORANGE
- City: WINTER PARK
- Zipcode: 32789
- Subdivision: Whispering Waters
- Building: Whispering Waters
- Elementary School: Audubon Park K8
- Middle School: Audubon Park K 8
- High School: Winter Park High

- DMCA Notice
-
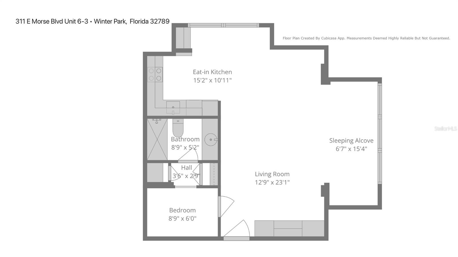
DescriptionDiscover your new downtown Winter Park ground floor pied terre. Two blocks from Park Avenue, the 1960s mid century modern Whispering Waters Condominiums are a Winter Park landmark. Your remodeled end unit studio features an updated open kitchen with plentiful wood cabinets, ceramic tile flooring throughout, new dual pane windows, a stylish updated bathroom with a step in shower, and wood built ins in the living room. Open to the living room is a sleeping alcove that accommodates a queen size bed. An additional 9 by 6 enclosed room could be used as a bedroom, an office, or a lounging space. With easy access from your new pad to both Interlachen Avenue and Morse Boulevard, your downtown Winter Park adventures await.< Included is one assigned parking space in the secured underground garage, where you will also find a community laundry room. Enjoy mail and package delivery directly to your door. Electricity, gas, water, and sewer are included in your monthly condo fee for worry free simplicity. Community amenities include: Community swimming pool; Lakeview social club room; Outdoor patios overlooking Lake Osceola; On site management. Whispering Waters is a 55+ Community.
Payment Calculator
- Principal & Interest -
- Property Tax $
- Home Insurance $
- HOA Fees $
- Monthly -
For a Fast & FREE Mortgage Pre-Approval
Apply Now
Apply NowFeatures
Building and Construction
- Covered Spaces: 0.00
- Exterior Features: Lighting, Sidewalk
- Flooring: Ceramic Tile
- Living Area: 570.00
- Roof: Other
Property Information
- Property Condition: Completed
School Information
- High School: Winter Park High
- Middle School: Audubon Park K-8
- School Elementary: Audubon Park K8
Garage and Parking
- Garage Spaces: 1.00
- Open Parking Spaces: 0.00
- Parking Features: Assigned
Eco-Communities
- Water Source: Public
Utilities
- Carport Spaces: 0.00
- Cooling: Central Air
- Heating: Central, Natural Gas
- Pets Allowed: Cats OK, Dogs OK, Yes
- Sewer: Public Sewer
- Utilities: Cable Connected, Electricity Connected, Phone Available, Private, Sewer Connected, Water Connected
Amenities
- Association Amenities: Elevator(s), Laundry
Finance and Tax Information
- Home Owners Association Fee Includes: Pool, Electricity, Escrow Reserves Fund, Gas, Insurance, Maintenance Structure, Maintenance Grounds, Maintenance, Management, Pest Control, Sewer, Trash, Water
- Home Owners Association Fee: 0.00
- Insurance Expense: 0.00
- Net Operating Income: 0.00
- Other Expense: 0.00
- Tax Year: 2025
Other Features
- Appliances: Cooktop, Dishwasher, Gas Water Heater, Microwave, Range Hood, Refrigerator
- Association Name: Teresa Toole
- Association Phone: 407-647-7160
- Country: US
- Furnished: Negotiable
- Interior Features: Eat-in Kitchen, Open Floorplan, Window Treatments
- Legal Description: PHILLIPS CIRCLE REPLAT R/1 THE S 190 FT LOT 1 BLDG 6 APT 3
- Levels: One
- Area Major: 32789 - Winter Park
- Occupant Type: Vacant
- Parcel Number: 06-22-30-6868-06-003
- Style: Mid-Century Modern
- Unit Number: 6-3
- View: City, Garden, Water
- Views: 26
- Zoning Code: RES






































