Submit an Offer Now!
1461 Marlin Street, NOKOMIS, FL 34275
Property Photos
Priced at Only: $1,050,000
For more Information Call:
(352) 279-4408
Address: 1461 Marlin Street, NOKOMIS, FL 34275
Property Location and Similar Properties
- MLS#: N6141707 ( Residential )
- Street Address: 1461 Marlin Street
- Viewed: 13
- Price: $1,050,000
- Price sqft: $375
- Waterfront: Yes
- Wateraccess: Yes
- Waterfront Type: Canal - Brackish,Canal - Saltwater
- Year Built: 1986
- Bldg sqft: 2800
- Bedrooms: 3
- Total Baths: 2
- Full Baths: 2
- Garage / Parking Spaces: 2
- Days On Market: 7
- Additional Information
- Geolocation: 27.1346 / -82.4358
- County: SARASOTA
- City: NOKOMIS
- Zipcode: 34275
- Subdivision: Waterfront Estates
- Elementary School: Laurel Nokomis
- Middle School: Laurel Nokomis
- High School: Venice Senior
- Provided by: KELLER WILLIAMS ISLAND LIFE REAL ESTATE
- Contact: Michelle Hupp
- 941-254-6467

- DMCA Notice
-
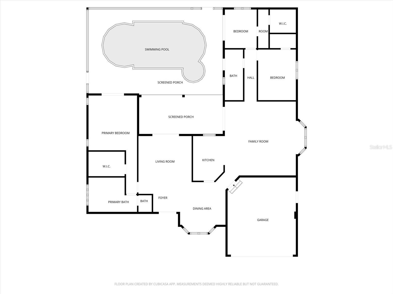
DescriptionDock and 16,000 lb boat lift! Gulf access! Private pool! Impact glass! Experience the florida lifestyle of coastal living at 1461 marlin st, nokomis an elevated and updated waterfront retreat boasting over $300,000 in enhancements. Highlights include: ac, water heater, pool equipment with wifi automation (2024); hurricane impact windows and doors, new garage door, new pool cage with panoramic screens, home re piped and updated bathrooms (2018); metal roof, pool resurfaced and new travertine pool deck (2017) the list goes on! Perfectly positioned at the end of a tranquil cul de sac, with over a 1/3 of an acre, this nokomis residence offers an extraordinary blend of sophistication, privacy, and true gulf access living along the serene waters of shakett creek. Step inside this waterfront 3 bedroom, split floor plan home to discover water views and a bright interior adorned with tile flooring, plantation shutters, and hurricane impact glass throughout. Every detail has been thoughtfully elevated, including beautifully renovated bathrooms, one of which offers effortless pool access to complement the homes indoor outdoor lifestyle. The primary bedroom features water views with sliding glass doors for pool access, large walk in closet with custom shelving, updated primary bathroom with dual vanities, updated shower with a separate soaking tub and a private water closet. The guest bedroom positioned at the rear of the home also features sliding glass doors for pool access and sunset water views! The updated guest bathroom is complete with easy pool access! Your private outdoor sanctuary rivals a luxury resortfeaturing a newer pool cage with panoramic screens to enjoy unobstructed water and sunset views, newer travertine tiled pool deck, recently resurfaced sparkling solar heated pool, and a dock with a 16,000 lb boat lift. Whether youre relaxing poolside, cruising to the gulf, launching your paddleboard or kayak, casting a line from your dock or savoring quiet water views, this waterfront setting is unmatched. While the home is on public water, there is a private well for all your irrigation needs. Ideally located near nokomis beach, downtown venice, venice beach, sarasota memorial hospital, with easy i 75 access, this gulf access home offers both exclusivity and unbeatable convenience. With its extensive updates, premier waterfront access, and elevated design, this exceptional residence delivers a rare opportunity to own a true coastal haven. Please copy and paste the following link to view the luxury video of this home: https://player. Vimeo. Com/video/1140785526? Badge=0&autopause=0&player_id=0&app_id=58479
Payment Calculator
- Principal & Interest -
- Property Tax $
- Home Insurance $
- HOA Fees $
- Monthly -
For a Fast & FREE Mortgage Pre-Approval
Apply Now
Apply NowFeatures
Building and Construction
- Covered Spaces: 0.00
- Exterior Features: Outdoor Shower, Private Mailbox, Private Yard, Rain Gutters, Sliding Doors
- Flooring: Ceramic Tile
- Living Area: 2006.00
- Other Structures: Shed(s)
- Roof: Metal
Land Information
- Lot Features: Cleared, Cul-De-Sac, Flood Insurance Required, In County, Street Dead-End, Paved
School Information
- High School: Venice Senior High
- Middle School: Laurel Nokomis Middle
- School Elementary: Laurel Nokomis Elementary
Garage and Parking
- Garage Spaces: 2.00
- Open Parking Spaces: 0.00
- Parking Features: Driveway, Garage Door Opener, Ground Level, Off Street
Eco-Communities
- Pool Features: Gunite, Heated, In Ground, Lighting, Screen Enclosure, Solar Heat
- Water Source: Public
Utilities
- Carport Spaces: 0.00
- Cooling: Central Air
- Heating: Central, Electric
- Pets Allowed: Cats OK, Dogs OK, Yes
- Sewer: Septic Tank
- Utilities: BB/HS Internet Available, Cable Connected, Electricity Connected
Finance and Tax Information
- Home Owners Association Fee: 0.00
- Insurance Expense: 0.00
- Net Operating Income: 0.00
- Other Expense: 0.00
- Tax Year: 2025
Other Features
- Appliances: Dishwasher, Dryer, Electric Water Heater, Exhaust Fan, Microwave, Range, Refrigerator, Washer
- Country: US
- Furnished: Unfurnished
- Interior Features: Ceiling Fans(s), High Ceilings, Kitchen/Family Room Combo, Primary Bedroom Main Floor, Split Bedroom, Thermostat, Vaulted Ceiling(s), Walk-In Closet(s), Window Treatments
- Legal Description: LOT 67 WATERFRONT ESTATES
- Levels: One
- Area Major: 34275 - Nokomis/North Venice
- Occupant Type: Owner
- Parcel Number: 0383080001
- Possession: Close Of Escrow
- Style: Florida
- View: Water
- Views: 13
- Zoning Code: RSF3
Similar Properties
Nearby Subdivisions
Arabian Court
Aria
Bay Point Acreage
Bay Point Corr Of
Blackburn Rdg Add
Calusa Lakes
Calusa Park
Calusa Park Ph 2
Casas Bonitas
Casey Key
Cassata Lakes
Cassata Lakes Ph I
Cielo
Citrus Highlands
Citrus Park
Colonial Bay Acres
Cottagescurry Crk
Curry Cove
Duquoin Heights
Fairwinds Village
Fairwinds Village 1
Fairwinds Village 2
Falcon Trace At Calusa Lakes
From A Pt 25 Ft E Of Nw Cor Of
Gedney Richard H Inc
Geneva Heights
Hidden Bay Estates
Inlets Sec 01
Inlets Sec 02
Inlets Sec 05
Inlets Sec 06
J K Myrtle Hill Sub
Kilton Estates
Laurel Hollow
Laurel Villa
Legacy Groves Phase 1
Magnolia Bay
Magnolia Bay South Phase 1
Marland Court
Milano
Milano Ph 2
Milano Ph 2 Rep 1
Milanoph 2
Milanoph 2replat 1
Mission Valley Estate Sec A
Mission Valley Estate Sec B1
Mobile City
Nokomis
Nokomis Acres
Nokomis Acres Amd
Nokomis Heights
None
Not Applicable
Palmero
Palmero Sorrento Phase 2
Roberts Sub
Shakett Creek Pointe
Sorrento Bayside
Sorrento Cay
Sorrento East
Sorrento Ph Ii
Sorrento Place 1
Sorrento South
Sorrento Villas
Sorrento Villas 4
Sorrento Villas 5
Sorrento Villas 6
Sorrento Woods
Spencer Cove
Spoonbill Hammock
Talon Preserve On Palmer Ranch
Talon Preserve Ph 2a 26
Talon Preserve Ph 4
Talon Preserve Ph 5a
Talon Preserve Phases 2a 2b
Tiburon
Twin Laurel Estates
Venetian Gardens
Venetian Golf River Club
Venetian Golf River Club Pha
Venice Byway
Venice Woodlands Ph 1
Venice Woodlands Ph 2b
Vicenza Ph 1
Vicenza Phase 2
Villagesmilano
Vistera Of Venice
Vistera Phase 1
Waterfront Estates
Windwood


































































