Submit an Offer Now!
7817 56th Street, TAMPA, FL 33617
Property Photos
Priced at Only: $26,400
For more Information Call:
(352) 279-4408
Address: 7817 56th Street, TAMPA, FL 33617
Property Location and Similar Properties
- MLS#: TB8353684 ( Commercial Lease )
- Street Address: 7817 56th Street
- Viewed: 104
- Price: $26,400
- Price sqft: $19
- Waterfront: No
- Year Built: 2002
- Bldg sqft: 1400
- Days On Market: 301
- Additional Information
- Geolocation: 28.0191 / -82.3931
- County: HILLSBOROUGH
- City: TAMPA
- Zipcode: 33617
- Subdivision: River Haven Estates Subdivisio
- Provided by: FLORIDA COMMERCIAL GROUP
- Contact: Tina Marie Eloian
- 813-935-9600

- DMCA Notice
-
DescriptionPrime opportunity to lease along a highly trafficked corridor in the northeast tampa/ temple terrace area. This property offers approximately 110' of frontage on n. 56th street and is in a highly sought after commercial area that benefits from excellent exposure and heavy traffic flow of over 41,000 vehicles per day. Zoned commercial neighborhood, you will be surrounded by a bustling residential neighborhood and a short commute to usf and the greater east tampa area. Whether you are an established business or a business owner looking to relocate, dont miss this opportunity to lease this premier property! Nearby national retailers include: winn dixie, dollar general, family dollar, firestone, 7 eleven, aarons rent to own, sherwin williams paint store, public storage, u haul, wendys, mcdonalds, checkers, burger king, firehouse grill, subway, starbucks, dunkin doughnuts, texaco, citgo, mobil gas station, shell gas station, usps, amscot, western union, moneygram, cvs and walgreens. Major area destinations accessible from this site include downtown tampa, tampa international airport, busch gardens, adventure island, seminole hard rock casino, university of south florida, veterans hospital, advent health hospital and the moffitt cancer center. * 7817 n. 56th street benefits from its proximity to community landmarks, thriving professional districts, entertainment venues, dining and shopping establishments and growing residential neighborhoods. * temple terrace/ riverhills area has all the amenities of small town florida set within a buzzing metropolitan landscape. * here is a rare opportunity to get in on the rapid growth surge of this flourishing area! * situated between busch blvd. And sligh avenue, directly on n. 56th street, this location offers easy access to hillsborough avenue, temple terrace hwy. , us hwy. 301 and interstate 75 as well as a short commute to tampa international airport, downtown tampa, westshore, south tampa, the channel district and historic ybor city. * within a 3 mile radius of this site, approximately 99,254 people with an average age of 38 and the hh income is over $63,979/
Payment Calculator
- Principal & Interest -
- Property Tax $
- Home Insurance $
- HOA Fees $
- Monthly -
For a Fast & FREE Mortgage Pre-Approval
Apply Now
Apply NowFeatures
Building and Construction
- Covered Spaces: 0.00
- Living Area: 1400.00
Garage and Parking
- Garage Spaces: 0.00
- Open Parking Spaces: 0.00
Utilities
- Carport Spaces: 0.00
- Cooling: Other
- Road Frontage Type: City Street
Finance and Tax Information
- Home Owners Association Fee: 0.00
- Insurance Expense: 0.00
- Net Operating Income: 0.00
- Other Expense: 0.00
- Tax Year: 2024
Rental Information
- Tenant Pays: Electricity, Insurance, Taxes
Other Features
- Country: US
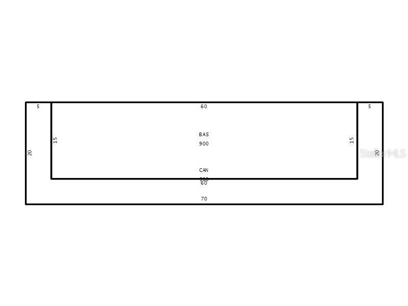
- Legal Description: RIVER HAVEN ESTATES SUBDIVISION N 10 FT OF LOT 34 AND LOT 35 LESS R/W FOR SR 583
- Area Major: 33617 - Tampa / Temple Terrace
- Parcel Number: U-27-28-19-1KM-000000-00034.1
- Views: 104
- Zoning Code: CN
Owner Information
- Owner Pays: Other
Similar Properties
Nearby Subdivisions







