Submit an Offer Now!
12118 Fairway Avenue, BROOKSVILLE, FL 34613
Property Photos
Priced at Only: $144,900
For more Information Call:
(352) 279-4408
Address: 12118 Fairway Avenue, BROOKSVILLE, FL 34613
Property Location and Similar Properties
- MLS#: TB8457508 ( Residential )
- Street Address: 12118 Fairway Avenue
- Viewed: 4
- Price: $144,900
- Price sqft: $70
- Waterfront: No
- Year Built: 1980
- Bldg sqft: 2057
- Bedrooms: 2
- Total Baths: 2
- Full Baths: 2
- Garage / Parking Spaces: 2
- Days On Market: 3
- Additional Information
- Geolocation: 28.5474 / -82.5257
- County: HERNANDO
- City: BROOKSVILLE
- Zipcode: 34613
- Subdivision: High Point Mh Sub
- Provided by: THE ATLAS GROUP
- Contact: Thomas Madonia, PA
- 352-584-0050

- DMCA Notice
-
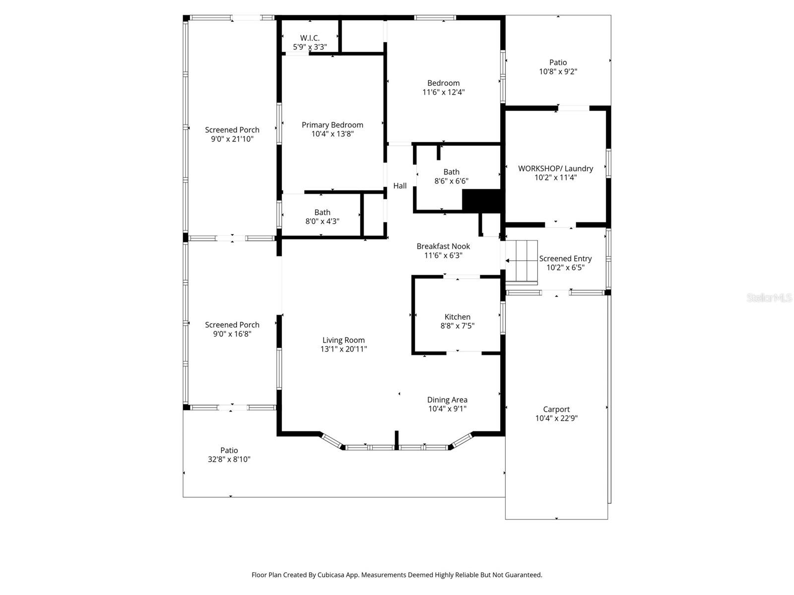
DescriptionSpacious 2 bedroom, 2 bath home featuring high ceilings and an open floor plan designed for comfortable living and entertaining. The updated kitchen offers a charming breakfast nook and ample countertop and cabinet space. Both bedrooms are generously sized, providing flexibility and comfort. Enjoy year round relaxation in the enclosed Florida room, plus a screened patio overlooking the yardperfect for outdoor enjoyment. Located in the vibrant & active 55+ High Point Golf Community that offers tons of amenities such as Golf, tennis, pickleball, heated pool, social events and so much more. High Point is located close to shopping, restaurants, entertainment, and medical facilities. Low HOA fees and you OWN YOUR OWN LAND.
Payment Calculator
- Principal & Interest -
- Property Tax $
- Home Insurance $
- HOA Fees $
- Monthly -
For a Fast & FREE Mortgage Pre-Approval
Apply Now
Apply NowFeatures
Building and Construction
- Covered Spaces: 0.00
- Exterior Features: Lighting
- Flooring: Carpet, Tile
- Living Area: 989.00
- Roof: Shingle
Garage and Parking
- Garage Spaces: 0.00
- Open Parking Spaces: 0.00
Eco-Communities
- Water Source: Public
Utilities
- Carport Spaces: 2.00
- Cooling: Central Air
- Heating: Electric
- Pets Allowed: Cats OK, Dogs OK
- Sewer: Public Sewer
- Utilities: Electricity Connected
Finance and Tax Information
- Home Owners Association Fee: 44.00
- Insurance Expense: 0.00
- Net Operating Income: 0.00
- Other Expense: 0.00
- Tax Year: 2025
Other Features
- Appliances: Dishwasher, Dryer, Microwave, Range, Refrigerator, Washer
- Association Name: Corinne-Processor
- Association Phone: 352-596-2397
- Country: US
- Furnished: Partially
- Interior Features: Open Floorplan
- Legal Description: HIGH POINT SUB UNIT 5 BLK 45 LOT 18
- Levels: One
- Area Major: 34613 - Brooksville/Spring Hill/Weeki Wachee
- Occupant Type: Owner
- Parcel Number: R29-222-18-2550-0450-0180
- Possession: Close Of Escrow
- Zoning Code: PDP(MF)
Similar Properties
Nearby Subdivisions
Brookridge
Brookridge Comm
Brookridge Community
High Point
High Point Community
High Point M H Sub All
High Point Mh Sub
High Point Mh Sub Un 1
High Point Mh Sub Un 3
High Point Mobile Home Sub
High Point Sub
High Point Sub Unit 5 Blk 55 L
Highpoint
Pine Grove Sub
Potterfield Garden Ac M
Potterfield Garden Acres Un 2
Potterfield Gdn Ac























































