Submit an Offer Now!
15650 Meacham Circle, PORT CHARLOTTE, FL 33981
Property Photos
Priced at Only: $1,200,000
For more Information Call:
(352) 279-4408
Address: 15650 Meacham Circle, PORT CHARLOTTE, FL 33981
Property Location and Similar Properties
- MLS#: C7518869 ( Residential )
- Street Address: 15650 Meacham Circle
- Viewed: 2
- Price: $1,200,000
- Price sqft: $324
- Waterfront: Yes
- Wateraccess: Yes
- Waterfront Type: Canal - Brackish
- Year Built: 2020
- Bldg sqft: 3699
- Bedrooms: 3
- Total Baths: 3
- Full Baths: 3
- Garage / Parking Spaces: 3
- Days On Market: 13
- Additional Information
- Geolocation: 26.911 / -82.1958
- County: CHARLOTTE
- City: PORT CHARLOTTE
- Zipcode: 33981
- Subdivision: Port Charlotte Sec 093
- Elementary School: Myakka River Elementary
- Middle School: L.A. Ainger Middle
- High School: Lemon Bay High
- Provided by: KW PEACE RIVER PARTNERS
- Contact: Rhonda Gustitus
- 941-875-9060

- DMCA Notice
-
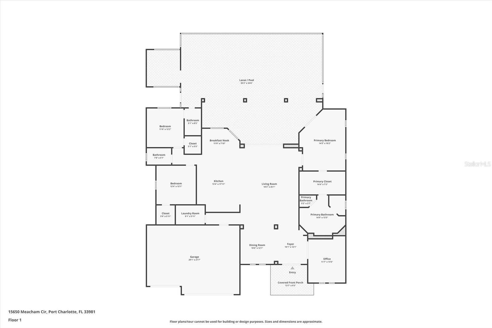
DescriptionLocation! Location! Dont miss this furnished 2020 built CUSTOM MINI ESTATE WATERFRONT POOL HOME with Southern exposure and SAILBOAT ACCESS offering quick boating access to Charlotte Harbor and the Gulf of Mexico! (no bridges to go under!) This stunning 3 bedroom, 3 bathroom 3 car spacious garage pool home with tile roof and a private office (which can serve as a 4th bedroom) was built by the prestigious Luke Brothers Custom Homes. It's packed with luxury features, and every detail has been thoughtfully crafted for the ultimate Florida lifestyle. As you step onto the paver driveway and walkway, youll be captivated by the impressive entryway. Double leaded glass doors with accordion storm doors in front, lead you into a grand foyer, where your eyes will immediately be drawn to the sparkling saltwater pool and canal views. The pool area features paver decking, a state of the art saltwater heated pebble tech pool with hot tub waterfall and ledge loungers & a paver walkway that takes you to the incredible 60' composite dock. This dock is fully equipped with 240 electric, a 10,000 lb covered boat lift, a jet ski lift, and an 80' concrete seawall, all set in one of the most desirable locations in South Gulf Cove. Inside the home, the craftsmanship shines with 15' coffered ceilings adorned with Poplar wood, crown molding, and beautiful light fixtures. The grand living space showcases lighted built in shelving, custom gray Spanish tile flooring, and plantation shutters throughout. The gourmet kitchen is a showstopper, boasting a Cambria Quartz center island, high end Electrolux stainless steel appliances, convection cooktop, built in oven, microwave, dishwasher and custom soft close wood cabinetry with crown molding. A glass tile backsplash and lighted display cabinets add to the kitchen's charm. The master suite is an oasis, with coffered tray ceilings, pool access, and two spacious walk in closets with built in shelving. The luxurious master bath offers a large walk in shower, separate tub, dual sinks, and upgraded granite countertops. Step outside to the cabana with a metal roof & custom electric sun shade, where entertaining is a breeze! This outdoor kitchen includes a stainless steel built in grill, double burner, bar refrigerator, and granite countertops. The pool area is equally stunning with a waterfall, fiber optic color wheel, and fire columns that create a true resort vibe. Additional features include impact windows, Kevlar automatic shutter for the back lanai area, Ring doorbell, a 3 car garage with epoxy floors, smart garage door opener, central vacuum, and an on demand hot water heater and so much more! The yard is fenced on one side with AstroTurf and a brick paver walkway to the cabana. If youre into boating, fishing, or just love the water, this home is minutes from Boca Grande with easy access to Charlotte Harbor and the Gulf. Call us today for a private showingyoull be glad you did!
Payment Calculator
- Principal & Interest -
- Property Tax $
- Home Insurance $
- HOA Fees $
- Monthly -
For a Fast & FREE Mortgage Pre-Approval
Apply Now
Apply NowFeatures
Building and Construction
- Builder Model: Hayden Key West
- Builder Name: Luke Brothers Custom Homes
- Covered Spaces: 0.00
- Exterior Features: Hurricane Shutters, Lighting, Outdoor Grill, Outdoor Kitchen, Outdoor Shower, Rain Gutters, Shade Shutter(s), Sliding Doors
- Flooring: Tile
- Living Area: 2471.00
- Other Structures: Cabana, Outdoor Kitchen
- Roof: Metal, Tile
Property Information
- Property Condition: Completed
Land Information
- Lot Features: In County, Paved
School Information
- High School: Lemon Bay High
- Middle School: L.A. Ainger Middle
- School Elementary: Myakka River Elementary
Garage and Parking
- Garage Spaces: 3.00
- Open Parking Spaces: 0.00
- Parking Features: Boat, Driveway, Garage Door Opener, Golf Cart Garage, Guest, Oversized, RV Access/Parking
Eco-Communities
- Pool Features: Auto Cleaner, Child Safety Fence, Gunite, Heated, In Ground, Lighting, Outside Bath Access, Pool Alarm, Salt Water, Screen Enclosure
- Water Source: Public
Utilities
- Carport Spaces: 0.00
- Cooling: Central Air
- Heating: Central, Electric
- Pets Allowed: Yes
- Sewer: Public Sewer
- Utilities: BB/HS Internet Available, Cable Available, Electricity Available, Electricity Connected, Phone Available, Propane, Public, Sewer Connected, Water Connected
Finance and Tax Information
- Home Owners Association Fee: 120.00
- Insurance Expense: 0.00
- Net Operating Income: 0.00
- Other Expense: 0.00
- Tax Year: 2025
Other Features
- Appliances: Bar Fridge, Built-In Oven, Cooktop, Dishwasher, Disposal, Dryer, Electric Water Heater, Exhaust Fan, Microwave, Range Hood, Refrigerator, Washer
- Country: US
- Furnished: Furnished
- Interior Features: Built-in Features, Ceiling Fans(s), Central Vaccum, Crown Molding, Eat-in Kitchen, High Ceilings, Living Room/Dining Room Combo, Open Floorplan, Primary Bedroom Main Floor, Split Bedroom, Stone Counters, Thermostat, Tray Ceiling(s), Walk-In Closet(s), Window Treatments
- Legal Description: PCH 093 4974 0010 PORT CHARLOTTE SEC93 BLK4974 LT10 705/1061 946/87 1098/266 1278/839 PR18-82-DMH LOA4282/2175 DC4287/2007-DMH AFF4299/1316 4303/1218 4449/1395 E4469/158 REL4553/92 4696/1548
- Levels: One
- Area Major: 33981 - Port Charlotte
- Occupant Type: Owner
- Parcel Number: 412115254011
- Possession: Close Of Escrow
- Style: Custom, Florida
- View: Pool, Water
- Zoning Code: RSF3.5
Similar Properties
Nearby Subdivisions
900 Building
Alhambralk Marlin Ph I
Boman
Charlotte Sec 52
Country Estates
Fort Charlotte Sec 66
Gardens Of Gulf Cove
Gulf Cove
Harbor East
Harbor West
Not Applicable
Pch 052 1708 0002
Pch 056 1825 0018
Pch 056 1844 0002
Pch 056 1862 0018
Pch 082 4444 0001
Pch 082 4444 0006
Pch 082 4444 0018
Pch 082 4444 0020
Pch 082 4451 0022
Port Charlotte
Port Charlotte B Sec 78
Port Charlotte K Sec 82
Port Charlotte K Sec 87
Port Charlotte L Sec 58
Port Charlotte Pch 065 3773 00
Port Charlotte Sec 006
Port Charlotte Sec 031
Port Charlotte Sec 03e
Port Charlotte Sec 052
Port Charlotte Sec 053
Port Charlotte Sec 054
Port Charlotte Sec 056
Port Charlotte Sec 058
Port Charlotte Sec 060
Port Charlotte Sec 063
Port Charlotte Sec 065
Port Charlotte Sec 066
Port Charlotte Sec 067
Port Charlotte Sec 071
Port Charlotte Sec 072
Port Charlotte Sec 078
Port Charlotte Sec 081
Port Charlotte Sec 082
Port Charlotte Sec 085
Port Charlotte Sec 093
Port Charlotte Sec 095
Port Charlotte Sec 52
Port Charlotte Sec 58
Port Charlotte Sec 58 Tr G 01
Port Charlotte Sec 60
Port Charlotte Sec 66
Port Charlotte Sec 66 01
Port Charlotte Sec 71
Port Charlotte Sec 81
Port Charlotte Sec 82
Port Charlotte Sec 87
Port Charlotte Sec 93
Port Charlotte Sec 93 Tr S
Port Charlotte Sec 94 01
Port Charlotte Sec 94 01 Strep
Port Charlotte Sec 94 1st Repl
Port Charlotte Sec 95 02
Port Charlotte Sec Ninety 5
Port Charlotte Sec58
Port Charlotte Sec65
Port Charlotte Sec78
Port Charlotte Sec81
Port Charlotte Sec82
Port Charlotte Section 38
Port Charlotte Section 53
Port Charlotte Section 56
Port Charlotte Section 67
Port Charlotte Sub
Port Charlotte Sub Sec 54
Port Charlotte Sub Sec 58
Port Charlotte Sub Sec 71
Port Charlotte Sub Sec 78
Port Charlotte Sub Sec 82
Port Charlotte Sub Sec 93
Port Charlotte Subdivision Sec
Section 58 Of Port Charlotte
South Gulf Cove
South Gulf Covewaterview Poa
Village Hol Lakes
Village Holiday Lake














































































