Submit an Offer Now!
13408 Swiftwater Way, BRADENTON, FL 34211
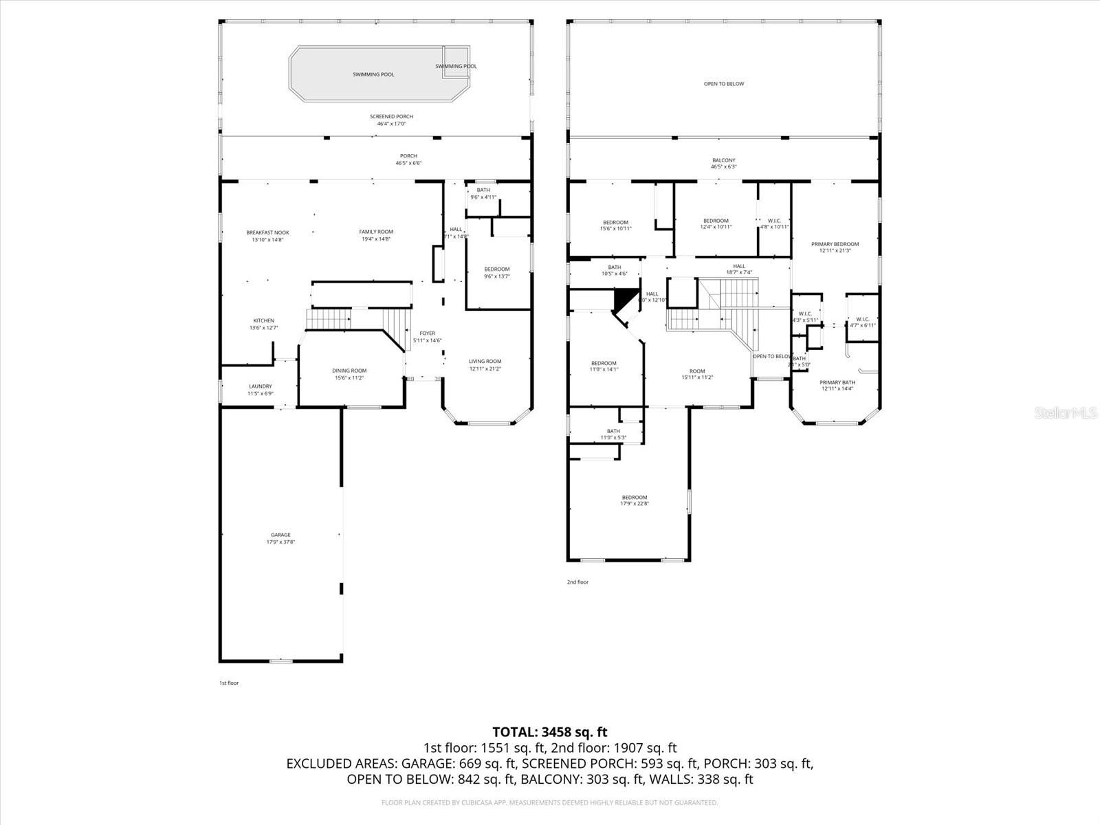
Property Photos
Priced at Only: $1,190,000
For more Information Call:
(352) 279-4408
Address: 13408 Swiftwater Way, BRADENTON, FL 34211
Property Location and Similar Properties
- MLS#: A4674648 ( Residential )
- Street Address: 13408 Swiftwater Way
- Viewed: 16
- Price: $1,190,000
- Price sqft: $206
- Waterfront: No
- Year Built: 2015
- Bldg sqft: 5770
- Bedrooms: 6
- Total Baths: 4
- Full Baths: 4
- Garage / Parking Spaces: 3
- Days On Market: 12
- Additional Information
- Geolocation: 27.4432 / -82.4071
- County: MANATEE
- City: BRADENTON
- Zipcode: 34211
- Subdivision: Bridgewater Ph Iii At Lakewood
- Elementary School: Gullett
- Middle School: Dr Mona Jain
- High School: Lakewood Ranch
- Provided by: EXP REALTY LLC
- Contact: Annie Jordan
- 888-883-8509

- DMCA Notice
-
DescriptionThis house has IT ALL!! Perfectly positioned beside a protected wildlife preserve and a restricted lot, this home offers exceptional privacy and a tranquil setting. Take in stunning sunset views from the balcony overlooking the pool and hot tuban ideal backdrop for everyday living and entertaining. This residence has been thoughtfully renovated with high end upgrades throughout, many of which are best appreciated in person. Enjoy a chef's kitchen, featuring premium appliances, custom solid walnut cabinetry with lighted glass accents, and sleek quartz countertops. If that's not enough...the home also features a flexible multi generational layout upstairs. Recent improvements include a new gourmet kitchen and upgraded laundry room, custom closet systems, electric blackout shades, and new second floor wood flooring. Major systems have also been upgraded with two new BTU Bosch HVAC units featuring advanced air filtration, a new Pentair pool system, and a newly replaced pool enclosure with double weave screening. Outdoor living is elevated with a renovated pool and spa, oversized screened lanai, and a maintenance free yard backing to community green space. Designed for flexibility, the upstairs layout includes spacious bedrooms as well a bedroom on the first floor. Bring all the toysthis oversized three car garage offers extra room for storage, bikes, or a golf cart. Your home will be just minutes from top rated schools and Lakewood Ranch Main Street, this home is a rare opportunity in one of the areas most desirable neighborhoods.
Payment Calculator
- Principal & Interest -
- Property Tax $
- Home Insurance $
- HOA Fees $
- Monthly -
For a Fast & FREE Mortgage Pre-Approval
Apply Now
Apply NowFeatures
Building and Construction
- Covered Spaces: 0.00
- Exterior Features: Balcony, Hurricane Shutters, Lighting, Outdoor Grill, Sidewalk, Sliding Doors
- Flooring: Tile, Wood
- Living Area: 3930.00
- Other Structures: Outdoor Kitchen
- Roof: Tile
Property Information
- Property Condition: Completed
School Information
- High School: Lakewood Ranch High
- Middle School: Dr Mona Jain Middle
- School Elementary: Gullett Elementary
Garage and Parking
- Garage Spaces: 3.00
- Open Parking Spaces: 0.00
- Parking Features: Driveway, Garage Door Opener, Garage Faces Side, Golf Cart Garage, Golf Cart Parking
Eco-Communities
- Green Energy Efficient: Appliances, HVAC, Water Heater
- Pool Features: Heated, In Ground, Lighting, Salt Water, Screen Enclosure, Tile
- Water Source: Public
Utilities
- Carport Spaces: 0.00
- Cooling: Central Air
- Heating: Central
- Pets Allowed: Yes
- Sewer: Public Sewer
- Utilities: BB/HS Internet Available, Cable Connected, Electricity Connected, Natural Gas Connected, Phone Available, Sewer Connected, Underground Utilities, Water Connected
Finance and Tax Information
- Home Owners Association Fee Includes: Maintenance Grounds
- Home Owners Association Fee: 1066.00
- Insurance Expense: 0.00
- Net Operating Income: 0.00
- Other Expense: 0.00
- Tax Year: 2024
Other Features
- Appliances: Built-In Oven, Cooktop, Dishwasher, Disposal, Dryer, Electric Water Heater, Exhaust Fan, Freezer, Microwave, Refrigerator, Washer
- Association Name: Bridgewater/Teresa Minafra
- Association Phone: 941-359-1134
- Country: US
- Furnished: Unfurnished
- Interior Features: Ceiling Fans(s), Crown Molding, High Ceilings, PrimaryBedroom Upstairs, Solid Wood Cabinets, Split Bedroom, Stone Counters, Tray Ceiling(s), Walk-In Closet(s), Window Treatments
- Legal Description: LOT 275 BRIDGEWATER PH III AT LAKEWOOD RANCH PI#5799.6380/9
- Levels: Two
- Area Major: 34211 - Bradenton/Lakewood Ranch Area
- Occupant Type: Owner
- Parcel Number: 579963809
- Possession: Close Of Escrow
- View: Trees/Woods
- Views: 16
- Zoning Code: PDMU/A
Nearby Subdivisions
Arbor Grande
Aurora
Avaunce
Braden River Ranchettes
Bridgewater Ph Iii At Lakewood
Central Park
Central Park Ph B1
Central Park Subphase A1b
Central Park Subphase A2a
Central Park Subphase B2a B2c
Central Park Subphase B2b
Central Park Subphase D1aa
Central Park Subphase D1ba D2
Central Park Subphase E1b
Central Park Subphase G2a G2b
Cresswind
Cresswind Ph I Subph A B
Cresswind Ph Ii Subph A B C
Cresswind Ph Iii
Eagle Trace Ph I
Eagle Trace Ph Iic
Harmony At Lakewood Ranch Ph I
Indigo At Lakewood Ranch
Indigo Ph Iv V
Indigo Ph Vi Subphase 6b 6c R
Lakewood Park
Lakewood Ranch Solera Ph Ia I
Lakewood Ranch Solera Ph Ic I
Lorraine Lakes
Lorraine Lakes Ph I
Lorraine Lakes Ph Iia
Lorraine Lakes Ph Iib1 Iib2
Lorraine Lakes Ph Iib3 Iic
Mallory Park Ph I A C E
Mallory Park Ph I D Ph Ii A
Mallory Park Ph Ii Subph A Rep
Mallory Park Ph Ii Subph C D
Not Applicable
Panther Ridge
Panther Ridge The Trails Ii
Park East At Azario
Park East At Azario Ph I Subph
Park East At Azario Ph Ii
Polo Run Ph Ia Ib
Polo Run Ph Iic Iid Iie
Polo Runlakewood Ranch
Pomello City Central
Pomello Park
Rosedale
Rosedale 10
Rosedale 11
Rosedale 2
Rosedale 8 Westbury Lakes
Rosedale 9
Rosedale Add Ph I
Rosedale Add Ph Ii
Rosedale Addition Phase Ii
Rosedale Links
Sapphire Point Ph I Ii Subph
Serenity Creek
Serenity Creek Rep Of Tr N
Solera At Lakewood Ranch
Solera At Lakewood Ranch Ph Ii
Solera Lakewood Ranch
Star Farms At Lakewood Ranch
Star Farms At Lakewood Ranch 5
Star Farms Ph Iiv
Star Farms Ph Iv Subph B C
Star Farms Ph V Subphases A
Sweetwater At Lakewood Ranch P
Sweetwaterlakewood Ranch Ph I
Waterbury Tracts Continued
Woodleaf Hammock Ph I




























































